Bolt heksagon bersalut zink gred 4.8adalah sejenis pengikat yang terdiri daripada kepala dan skru (silinder dengan benang luar), yang digunakan bersama dengan nat untuk mengikat dua bahagian dengan lubang telus. Bentuk sambungan ini dipanggil sambungan bolt. Sekiranyakacangdaripadabolt heksagon bersalut zink gred 4.8ke bawah, dan boleh membuat dua bahagian berasingan, jadi sambungan bolt ialah sambungan boleh tanggal.

Pelbagai kekuatan: Kekuatan teganganbolt heksagon bersalut zink gred 4.8tidak kurang daripada 400MPa, dan kekuatan hasil tidak kurang daripada 320MPa, yang mampu memenuhi keperluan sambungan mekanikal am, sambungan struktur bangunan dan banyak senario aplikasi kejuruteraan konvensional yang lain, seperti pemasangan peralatan mekanikal biasa, membina struktur keluli beberapa bahagian sambungan yang tidak kritikal dan sebagainya.
Kos yang lebih rendah: Berbanding dengan bolt gred berkekuatan tinggi, bolt gred 4.8 dalam proses pengeluaran keperluan bahan mentah agak rendah, proses pembuatannya agak mudah, tidak perlu melalui rawatan haba yang kompleks dan proses lain untuk meningkatkan kekuatan, jadi kos pengeluarannya lebih rendah, dalam kawalan kos yang lebih ketat projek itu mempunyai kelebihan yang lebih besar.
Prestasi pemprosesan yang baik:Bolt heksagon bersalut zink gred 4.8kekerasan bahan adalah sederhana, mudah untuk memotong, menggerudi, menoreh dan operasi pemesinan lain, boleh menghasilkan dengan cekapboltselaras dengan keperluan ketepatan dimensi dan kualiti permukaan, tetapi juga kondusif untuk pemasangan tapak untuk pemprosesan sekunder yang diperlukan, seperti melaraskan panjang bolt.

Bolt heksagon bersalut zink gred 4.8kerana kekuatannya tidak terlalu tinggi, dalam proses pemasangan, penggunaan alat biasa seperti sepana dan sebagainya boleh diketatkan operasi, tidak perlu menggunakan kekuatan tinggi khasboltalat pemasangan, mengurangkan kesukaran pemasangan dan kos pemasangan, tetapi juga meningkatkan kecekapan pemasangan.
Dalam beberapa perumah elektrik biasa atau sambungan komponen dalaman,bolt heksagon bersalut zink gred 4.8boleh memberikan daya pengetatan yang mencukupi pada kos yang lebih rendah.
Peralatan mekanikal am: Dalam beberapa peralatan mekanikal yang tidak memerlukan kekuatan tinggi, seperti beberapa pemasangan mekanikal mudah atau sambungan peralatan ringan,bolt heksagon bersalut zink gred 4.8boleh memenuhi keperluan asas pengikat.
Pembuatan Perabot: Dalam pemasangan perabot, bolt gred 4.8 biasanya digunakan untuk menyambungkan panel kayu, plat dan komponen lain, dan ekonomi serta kekuatannya yang sederhana menjadikannya pengikat biasa dalam pembuatan perabot.
Pembinaan: Dalam struktur pembinaan, seperti beberapa bahagian sambungan tidak menanggung beban atau sambungan struktur pembinaan ringan,bolt heksagon bersalut zink gred 4.8juga boleh memainkan peranannya!
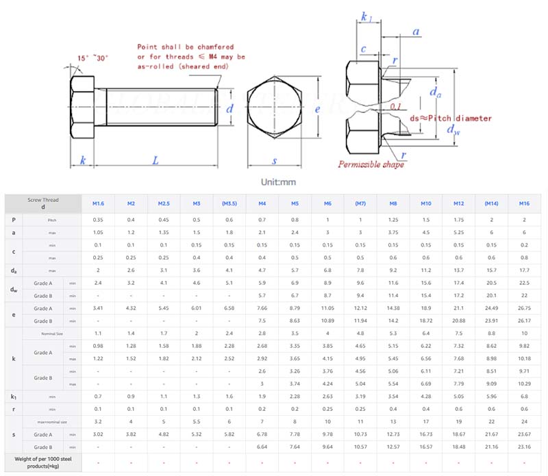
Gred 4.8 Zink Plated Hexagon Bolt terutamanya diperbuat daripada keluli karbon rendah, yang sepadan dengan keperluan gred kekuatan 4.8. Keluli karbon rendah dipilih kerana ia mempunyai kebolehmesinan yang baik, menjadikannya mudah untuk membentuk kepala heksagon dan benang yang tepat semasa pengeluaran. Penyaduran zink pada permukaan adalah proses penyaduran elektro yang membentuk lapisan zink nipis pada permukaan bolt. Lapisan ini bertindak sebagai penghalang untuk menghalang keluli asas daripada menyentuh udara dan lembapan, dengan itu mengurangkan karat dan kakisan. Proses penyaduran zink mengikut piawaian industri asas untuk memastikan salutan melekat dengan kukuh, tidak mudah terkelupas semasa pemasangan atau penggunaan. Untuk persekitaran dalaman atau luaran yang sederhana, gabungan bahan dan rawatan permukaan ini boleh memenuhi keperluan hayat perkhidmatan asas tanpa langkah anti-karat tambahan. Komposisi bahan bolt dan ketebalan penyaduran adalah konsisten merentas kelompok untuk memastikan prestasi seragam.
Kos pengangkutan Gred 4.8 Zink Plated Hexagon Bolt berbeza-beza berdasarkan beberapa faktor: kuantiti pesanan, jarak penghantaran, kaedah pengangkutan dan jenis destinasi. Untuk pesanan kecil, biasanya kurang daripada 10 kilogram, ekspres antarabangsa (seperti DHL atau FedEx) adalah perkara biasa. Yuran berat awal untuk ekspres antarabangsa adalah antara $15 hingga $30, dengan setiap kilogram tambahan menambah $5 hingga $12. Untuk tempahan sederhana hingga besar melebihi 10 kilogram, pengangkutan laut atau pengangkutan udara adalah lebih menjimatkan. Kos pengangkutan laut dikira mengikut meter padu atau berat, dengan bekas 20 kaki biasanya berharga $800 hingga $1500 untuk laluan jarak jauh, dan kos unit menurun dengan ketara untuk penghantaran pukal. Pengangkutan udara lebih cepat tetapi 3 hingga 6 kali lebih mahal daripada pengangkutan laut. Kos pengangkutan domestik lebih rendah, dengan pengangkutan jalan raya untuk 1 tan bolt antara $50 hingga $80 untuk jarak dekat. Kos tambahan mungkin termasuk yuran pengukuhan pembungkusan, yuran insurans dan yuran pelepasan kastam untuk penghantaran antarabangsa. Adalah dinasihatkan untuk mengesahkan pelan pengangkutan yang tepat dan kos dengan pembekal terlebih dahulu, kerana kuantiti pesanan yang lebih besar selalunya boleh merundingkan kadar tambang yang lebih baik.